Łódź mieszkanie

Usługa:

projekt wnętrza domu/mieszkania, projekt kuchni, projekt salonu, projekt sypialni, projekt innego pomieszczenia

Style:

glamour, japandi, quiet luxury

Rok zakończenia projektu:

2025
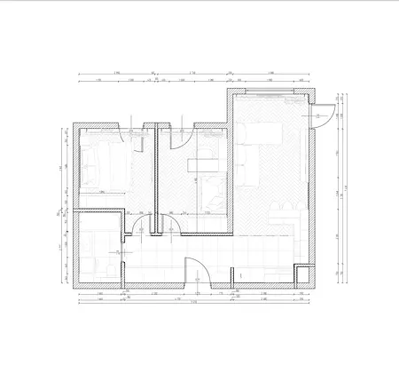
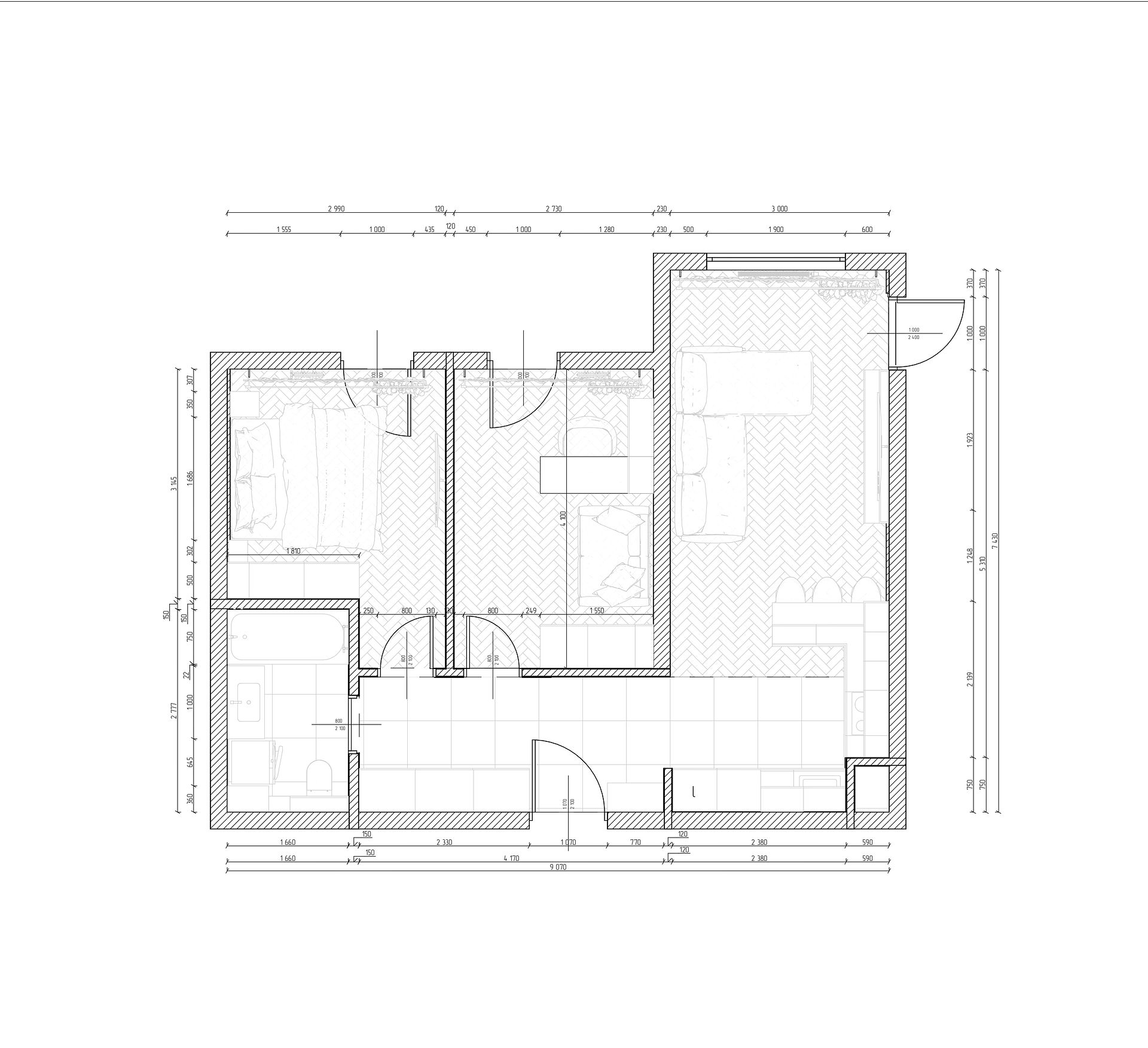
Ciepłe światło, naturalne tekstury, spokojna paleta barw — przestrzeń, w której ożywa przytulność. Dom, o którym marzysz, gdy pragniesz ciszy i inspiracji. Głównym życzeniem klienta było stworzenie jak największej ilości miejsca do przechowywania i wkomponowanie pufy w korytarzu w szafę przesuwnej. Życzeniem było również wkomponowanie tekstury skały, ale tak, aby była ona lekka i nie rzucała się w oczy.
Skontaktuj się z biuro projektowe Lada Panasenko projektant

Pozostałe projekty Lada Panasenko projektant

Wnętrze kuchni z drewnianymi meblami i beżowym tłem w stylu współczesnym i prowansalskim. 6 zdjęć w projekcie Zobacz projekt

Łódź kuchnia z łazienką

Współczesna kuchnia z drewnianymi meblami i pralką. 5 zdjęć w projekcie Zobacz projekt

Projekt szkoleniowy z pomieszczeniem o małej powierzchni.

Pokój dziecięcy z nowoczesnym łóżkiem w kształcie domku oraz szafkami w jasnych kolorach. 8 zdjęć w projekcie Zobacz projekt

Pokój dziecięcy dla dziecka w wieku 3-5 lat

Zamknij Zamknij

Zapytaj bezpłatnie o ofertę:

Lada Panasenko projektant

Lada Panasenko

0 / 1000
Uzupełnij pole. Skorzystaj z instrukcji "Co warto napisać w wiadomości do projektanta"


Jak ma się z Tobą skontaktować projektant?


Uzupełnij pole. Adres musi zawierać znak "@" i domenę (np. gmail.com)

Projektanci najszybciej odpowiadają telefonicznie

Pole nie może być puste

Chcę darmowy poradnik „Jak skutecznie pracować z projektantem wnętrz” Poradnik wyślemy na adres e-mail
Zaakceptuj zgody, aby kontynuować
*Pola wymagane

Zapytanie wysłane do Lada Panasenko projektant

Co dalej?

  1. Wyślij do innych jednym kliknięciem Zapisaliśmy treść zapytania – wyślij do kilku projektantów i zwiększ szanse na współpracę.
  2. Poczekaj na odpowiedź Projektanci zazwyczaj kontaktują się w ciągu 1–3 dni roboczych – mailowo lub telefonicznie.
Inni projektanci rekomendowani dla Ciebie:
Adres biura: Borówiec , wielkopolskie
Pracuję w:
Bydgoszcz, Gorzów Wielkopolski, Koszalin
(+4 miasta),
Możliwa praca w pełni zdalna
Cena usług: od 100 zł/m2
Style:
art deco, boho, glamour
( +8 stylów)
Rodziny z dziećmi
Single
Duże domy i mieszkania
Budżetowe
Własna ekipa remontowa
Adres biura: Poznań, wielkopolskie
Pracuję w:
Cała Polska,
Możliwa praca w pełni zdalna
Cena usług: od 250 zł/m2
Style:
glamour, industrialny, japandi
( +7 stylów)
Dostępny od zaraz
Duże domy i mieszkania
Nietypowe pomieszczenia
Własna ekipa remontowa
Adres biura: Warszawa, mazowieckie
Pracuję w:
Cała Polska,
Możliwa praca w pełni zdalna
Cena usług: od 150 zł/m2
Style:
boho, japandi, minimalistyczny
( +5 stylów)
Rodziny z dziećmi
Single
Duże domy i mieszkania
Zwierzęta
Wynajem krótkoterminowy
Adres biura: Sztum, pomorskie
Pracuję w:
Cała Polska,
Możliwa praca w pełni zdalna
Cena usług: od 150 zł/m2
Style:
art deco, boho, dopamine decor
( +12 stylów)
Duże domy i mieszkania
Nietypowe pomieszczenia
Ekologiczne rozwiązania
Inteligentny dom
Własna ekipa remontowa
Adres biura: Gdańsk, pomorskie
Pracuję w:
Cała Polska,
Możliwa praca w pełni zdalna
Style:
art deco, boho, dopamine decor
( +15 stylów)
Dostępny od zaraz
Małe pomieszczenia
Duże domy i mieszkania
Nietypowe pomieszczenia
Wynajem krótkoterminowy
Własna ekipa remontowa