Mieszkanie na wynajem okazjonalny - projekt kompleksowy

Autor

gabstudio

Usługa:

projekt wnętrza domu/mieszkania, projekt kuchni, projekt salonu, projekt łazienki/WC, projekt sypialni

Style:

industrialny, minimaluxe, nowoczesny, współczesny

Rok zakończenia projektu:

2022
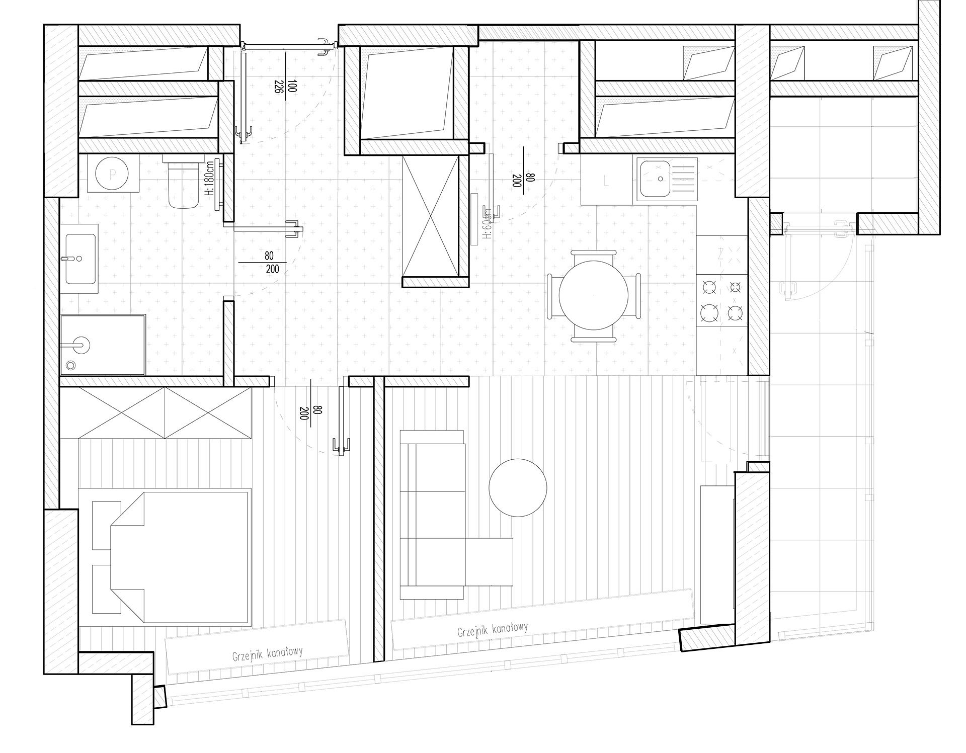
Mieszkanie zaprojektowane z myślą o wynajmie okazjonalnym, w pełni wyposażone - od mebli na wymiar, po meble ruchome i dodatki. Jasna, neutralna kolorystyka z przewagą szarości tworzy spójną i estetyczną przestrzeń, która jest łatwa w utrzymaniu czystości, a jednocześnie optycznie powiększa wnętrze i zapewnia wrażenie lekkości oraz świeżości.​​​​​​​
Skontaktuj się z biuro projektowe gabstudio

Pozostałe projekty gabstudio

Projekt kompleksowy mieszkania z piętrem na Warszawskim Bemowie. 19 zdjęć w projekcie Zobacz projekt

Projekt kompleksowy mieszkania z piętrem na Warszawskim Bemowie.

Wnętrze salonu w stylu dopamine decor, eklektycznym, japandi i nowoczesnym. 10 zdjęć w projekcie Zobacz projekt

Projekt kompleksowy mieszkania w kamienicy na Warszawskim Żoliborzu.

Projekt kompleksowy parteru domu jednorodzinnego typu nowoczesna stodoła pod Warszawą. 14 zdjęć w projekcie Zobacz projekt

Projekt kompleksowy parteru domu jednorodzinnego typu nowoczesna stodoła pod Warszawą.

Elegancki Apartament w Krakowie - realizacja pod klucz 10 zdjęć w projekcie Zobacz projekt

Elegancki Apartament w Krakowie - realizacja pod klucz

Projekt pojedynczych pomieszczeń w mieszkaniu w Krakowie. 9 zdjęć w projekcie Zobacz projekt

Projekt pojedynczych pomieszczeń w mieszkaniu w Krakowie.

Zamknij Zamknij

Zapytaj bezpłatnie o ofertę:

gabstudio

Gabriela Kalecińska

0 / 1000
Uzupełnij pole. Skorzystaj z instrukcji "Co warto napisać w wiadomości do projektanta"


Jak ma się z Tobą skontaktować projektant?


Uzupełnij pole. Adres musi zawierać znak "@" i domenę (np. gmail.com)

Projektanci najszybciej odpowiadają telefonicznie

Pole nie może być puste
Chcę darmowy poradnik „Jak skutecznie pracować z projektantem wnętrz” Poradnik wyślemy na adres e-mail
Zaakceptuj zgody, aby kontynuować
*Pola wymagane

gabstudio

Gabriela Kalecińska
Teraz poczekaj na kontakt od projektanta - wkrótce zapozna się z informacjami od Ciebie.

Napisz do innych projektantów i zwiększ szansę na współpracę!

Inni projektanci wnętrz:
Adres biura: Wrocław, dolnośląskie
Pracuję w:
Cała Polska,
Możliwa praca w pełni zdalna
Cena usług: od 250 zł/m2
Style:
art deco, boho, japandi
( +10 stylów)
Własna ekipa remontowa
Nietypowe pomieszczenia
Duże domy i mieszkania
Budżetowe
Wynajem krótkoterminowy
Pracuję w:
Warszawa
Cena usług: od 59 zł/projekt
Style:
art deco, eklektyczny, japandi
( +4 style)
Pracuję w:
Łódź,
Możliwa praca w pełni zdalna
Style:
art deco, boho, eklektyczny
( +7 stylów)
Małe pomieszczenia
Duże domy i mieszkania
Rodziny z dziećmi
Single
Osoby z niepełnosprawnością
Adres biura: Rawa Mazowiecka, łódzkie
Pracuję w:
Cała Polska,
Możliwa praca w pełni zdalna
Cena usług: od 179 zł/m2
Style:
boho, eklektyczny, glamour
( +8 stylów)
Dostępny od zaraz
Pracuję w:
Warszawa, Białystok, Gdańsk
(+11 miast),
Możliwa praca w pełni zdalna
Cena usług: od 150 zł/h
Style:
dopamine decor, eklektyczny, japandi
( +8 stylów)
Adres biura: Łódź, łódzkie
Pracuję w:
Częstochowa, Łódź, Płock,
Możliwa praca w pełni zdalna
Cena usług: od 300 zł/m2
Style:
boho, dopamine decor, eklektyczny
( +10 stylów)
Duże domy i mieszkania
Rodziny z dziećmi
Wynajem krótkoterminowy
Seniorzy
Wielbiciele roślin
Pracuję w:
Zielona Góra, Zabrze, Wrocław
(+40 miast),
Możliwa praca w pełni zdalna
Cena usług: od 100 zł/m2
Style:
art deco, boho, eklektyczny
( +12 stylów)
Pracuję w:
Możliwa praca w pełni zdalna
Style:
art deco, boho, dopamine decor
( +15 stylów)
Adres biura: Katowice, śląskie
Pracuję w:
Katowice, Bytom, Chorzów
(+8 miast),
Możliwa praca w pełni zdalna
Cena usług: od 100 zł/m2
Style:
boho, glamour, japandi
( +5 stylów)
Duże domy i mieszkania
Rodziny z dziećmi
Single
Budżetowe
Zwierzęta
Pracuję w:
Bielsko-Biała, Bydgoszcz, Bytom
(+40 miast),
Możliwa praca w pełni zdalna
Style:
boho, industrialny, japandi
( +9 stylów)