Projekt kompleksowy mieszkania w kamienicy na Warszawskim Żoliborzu.

Autor

gabstudio

Usługa:

projekt wnętrza domu/mieszkania

Style:

dopamine decor, eklektyczny, japandi, nowoczesny

Rok zakończenia projektu:

2025
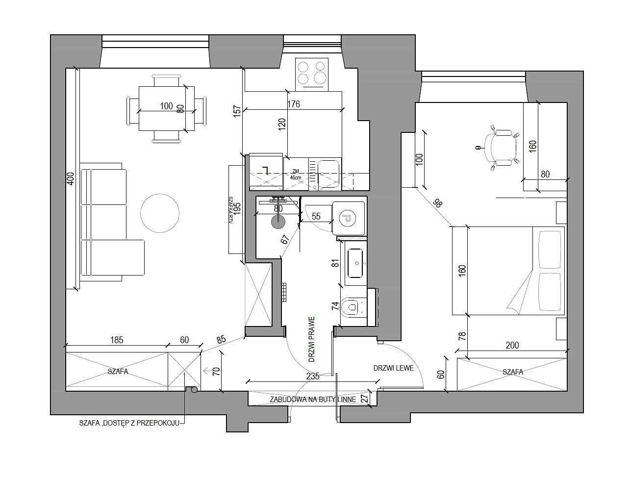
Mieszkanie w przedwojennej kamienicy na warszawskim Żoliborzu przeszło kompleksową metamorfozę. Najważniejszym celem było otwarcie i rozjaśnienie przestrzeni przy zachowaniu jej historycznego klimatu. Wraz z klientem postawiliśmy na styl ciepły, kolorowy i klasyczny. Drewniane meble ocieplają wnętrze, a akcenty kolorystyczne dodają mu energii. Zależało również na dużej ilości miejsca do przechowywania, dlatego zaprojektowaliśmy pojemne zabudowy. Całą ścianę przeznaczyliśmy na półki eksponujące imponującą kolekcję książek. Wyburzenie ścian między kuchnią, przedpokojem a salonem pozwoliło stworzyć jasną, spójną strefę dzienną. Parkiet wymieniono na nowy w tym samym wzorze, aby zachować ducha kamienicy.
Skontaktuj się z biuro projektowe gabstudio

Pozostałe projekty gabstudio

Projekt kompleksowy mieszkania z piętrem na Warszawskim Bemowie. 19 zdjęć w projekcie Zobacz projekt

Projekt kompleksowy mieszkania z piętrem na Warszawskim Bemowie.

Projekt kompleksowy parteru domu jednorodzinnego typu nowoczesna stodoła pod Warszawą. 14 zdjęć w projekcie Zobacz projekt

Projekt kompleksowy parteru domu jednorodzinnego typu nowoczesna stodoła pod Warszawą.

Elegancki Apartament w Krakowie - realizacja pod klucz 10 zdjęć w projekcie Zobacz projekt

Elegancki Apartament w Krakowie - realizacja pod klucz

Projekt pojedynczych pomieszczeń w mieszkaniu w Krakowie. 9 zdjęć w projekcie Zobacz projekt

Projekt pojedynczych pomieszczeń w mieszkaniu w Krakowie.

Mieszkanie na wynajem okazjonalny - projekt kompleksowy 8 zdjęć w projekcie Zobacz projekt

Mieszkanie na wynajem okazjonalny - projekt kompleksowy

Zamknij Zamknij

Zapytaj bezpłatnie o ofertę:

gabstudio

Gabriela Kalecińska

0 / 1000
Uzupełnij pole. Skorzystaj z instrukcji "Co warto napisać w wiadomości do projektanta"


Jak ma się z Tobą skontaktować projektant?


Uzupełnij pole. Adres musi zawierać znak "@" i domenę (np. gmail.com)

Projektanci najszybciej odpowiadają telefonicznie

Pole nie może być puste
Chcę darmowy poradnik „Jak skutecznie pracować z projektantem wnętrz” Poradnik wyślemy na adres e-mail
Zaakceptuj zgody, aby kontynuować
*Pola wymagane

gabstudio

Gabriela Kalecińska
Teraz poczekaj na kontakt od projektanta - wkrótce zapozna się z informacjami od Ciebie.

Napisz do innych projektantów i zwiększ szansę na współpracę!

Inni projektanci wnętrz:
Adres biura: Wrocław, dolnośląskie
Pracuję w:
Cała Polska,
Możliwa praca w pełni zdalna
Cena usług: od 250 zł/m2
Style:
art deco, boho, japandi
( +10 stylów)
Własna ekipa remontowa
Nietypowe pomieszczenia
Duże domy i mieszkania
Budżetowe
Wynajem krótkoterminowy
Pracuję w:
Warszawa
Cena usług: od 59 zł/projekt
Style:
art deco, eklektyczny, japandi
( +4 style)
Pracuję w:
Łódź,
Możliwa praca w pełni zdalna
Style:
art deco, boho, eklektyczny
( +7 stylów)
Małe pomieszczenia
Duże domy i mieszkania
Rodziny z dziećmi
Single
Osoby z niepełnosprawnością
Adres biura: Rawa Mazowiecka, łódzkie
Pracuję w:
Cała Polska,
Możliwa praca w pełni zdalna
Cena usług: od 179 zł/m2
Style:
boho, eklektyczny, glamour
( +8 stylów)
Dostępny od zaraz
Pracuję w:
Warszawa, Białystok, Gdańsk
(+11 miast),
Możliwa praca w pełni zdalna
Cena usług: od 150 zł/h
Style:
dopamine decor, eklektyczny, japandi
( +8 stylów)
Adres biura: Łódź, łódzkie
Pracuję w:
Częstochowa, Łódź, Płock,
Możliwa praca w pełni zdalna
Cena usług: od 300 zł/m2
Style:
boho, dopamine decor, eklektyczny
( +10 stylów)
Duże domy i mieszkania
Rodziny z dziećmi
Wynajem krótkoterminowy
Seniorzy
Wielbiciele roślin
Pracuję w:
Zielona Góra, Zabrze, Wrocław
(+40 miast),
Możliwa praca w pełni zdalna
Cena usług: od 100 zł/m2
Style:
art deco, boho, eklektyczny
( +12 stylów)
Pracuję w:
Możliwa praca w pełni zdalna
Style:
art deco, boho, dopamine decor
( +15 stylów)
Adres biura: Katowice, śląskie
Pracuję w:
Katowice, Bytom, Chorzów
(+8 miast),
Możliwa praca w pełni zdalna
Cena usług: od 100 zł/m2
Style:
boho, glamour, japandi
( +5 stylów)
Duże domy i mieszkania
Rodziny z dziećmi
Single
Budżetowe
Zwierzęta
Pracuję w:
Bielsko-Biała, Bydgoszcz, Bytom
(+40 miast),
Możliwa praca w pełni zdalna
Style:
boho, industrialny, japandi
( +9 stylów)