Projekt wnętrz: Pracownia Artystyczna

Usługa:

projekt innego pomieszczenia, projekt wnętrza domu/mieszkania, projekt kuchni, projekt pokoju dziecka

Style:

vintage
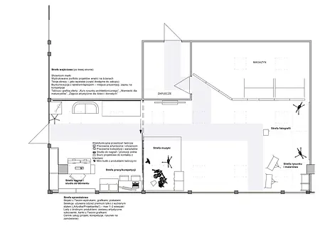
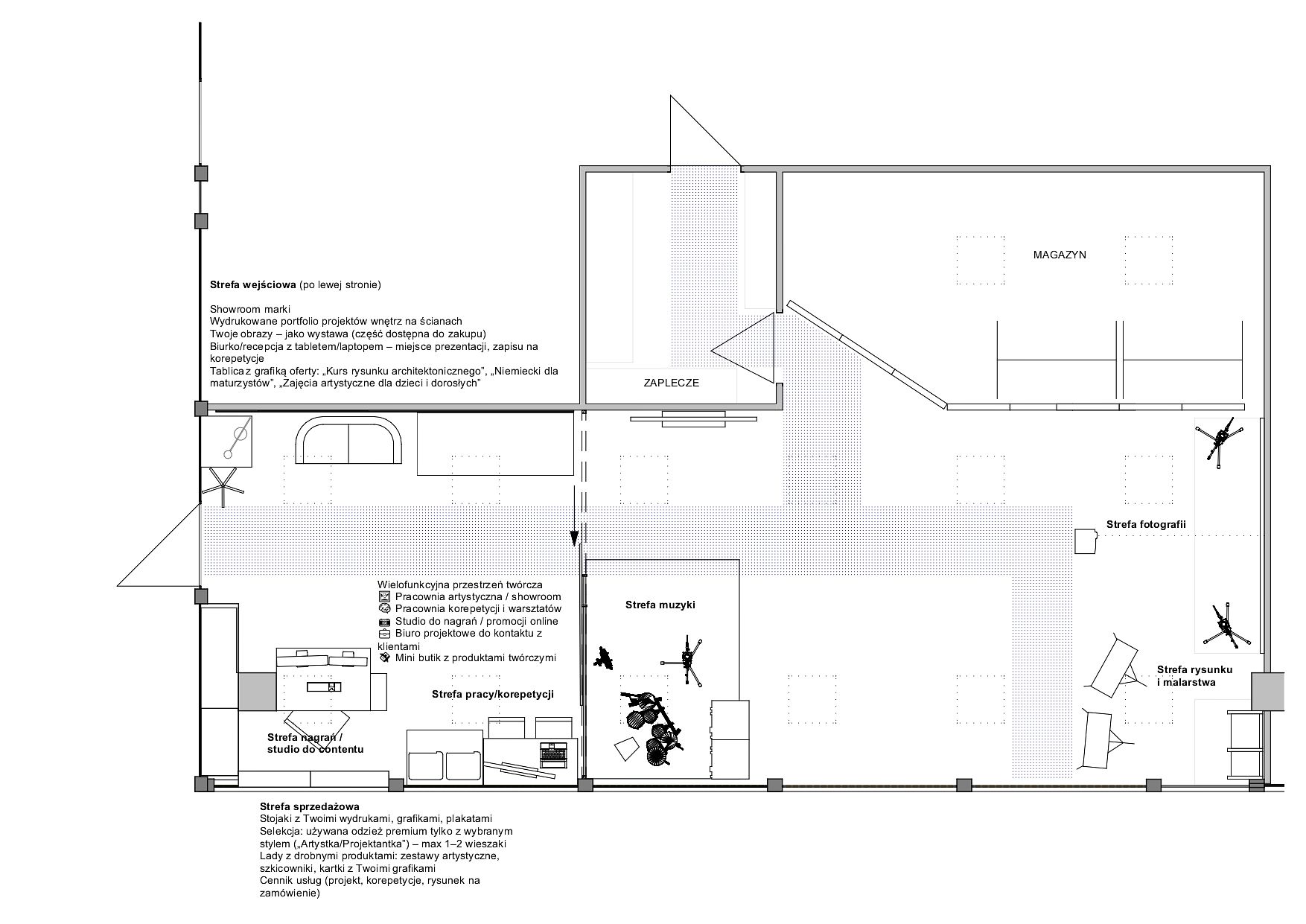
Projekt co- pracowni artystycznej jest salą wielofunkcyjną o przeznaczeniu dedykowanym dla pasjonatów warsztatów rysunkowych, malarskich, muzycznych, filmowych itp. Pierwsza część jest miejscem spotkań z klientami w sprawie projektowania wnętrz z obrazami autorskimi lub możliwością zamówienia sztuki indywidualnie. Przestrzeń przedziela ruchoma ściana będąca jednocześnie przesuwnym obrazem wielkoformatowym. Jest to miejsce spotkań osób starszych i młodszych - dla wszystkich, którzy chcą rozwijać swoje umiejętności i zdobywać wiedzę.
Skontaktuj się z biuro projektowe BIURO ARCHITEKTONICZNE MAGDALENA HARENDARZ

Pozostałe projekty BIURO ARCHITEKTONICZNE MAGDALENA HARENDARZ

Nowoczesna łazienka z białą wanną, drewnianymi akcentami i minimalistycznym designem. 4 zdjęć w projekcie Zobacz projekt

Projekt wnętrz: Łazienka z pralnią

Nowoczesne wnętrze salonu skandynawskiego z białą ścianą, drewnianymi półkami i roślinami 5 zdjęć w projekcie Zobacz projekt

Projekt wnętrz: Skandynawski salon i kuchnia. Projekt elewacji z przebudową.

Gabinet w stylu industrialnym z drewnianym biurkiem i zdjęciami na ścianach. 4 zdjęć w projekcie Zobacz projekt

Projekt wnętrz: Biuro Radia i Telewizji

Elewacja budynku z drewnianymi detalami i oknami, tradycyjny design. 4 zdjęć w projekcie Zobacz projekt

Projekt elewacji: Odnowienie modernistycznej kostki

Zamknij Zamknij

Zapytaj bezpłatnie o ofertę:

BIURO ARCHITEKTONICZNE MAGDALENA HARENDARZ

Magdalena Harendarz

0 / 1000
Uzupełnij pole. Skorzystaj z instrukcji "Co warto napisać w wiadomości do projektanta"


Jak ma się z Tobą skontaktować projektant?


Uzupełnij pole. Adres musi zawierać znak "@" i domenę (np. gmail.com)

Projektanci najszybciej odpowiadają telefonicznie

Pole nie może być puste
Chcę darmowy poradnik „Jak skutecznie pracować z projektantem wnętrz” Poradnik wyślemy na adres e-mail
Zaakceptuj zgody, aby kontynuować
*Pola wymagane

BIURO ARCHITEKTONICZNE MAGDALENA HARENDARZ

Magdalena Harendarz
Teraz poczekaj na kontakt od projektanta - wkrótce zapozna się z informacjami od Ciebie.

To dobry moment, by wysłać wiadomość do kogoś jeszcze!

Inni projektanci wnętrz:
Adres biura: Wrocław, dolnośląskie
Pracuję w:
Cała Polska,
Możliwa praca w pełni zdalna
Cena usług: od 250 zł/m2
Style:
art deco, boho, japandi
( +10 stylów)
Własna ekipa remontowa
Nietypowe pomieszczenia
Duże domy i mieszkania
Budżetowe
Wynajem krótkoterminowy
Pracuję w:
Warszawa
Cena usług: od 59 zł/projekt
Style:
art deco, eklektyczny, japandi
( +4 style)
Pracuję w:
Łódź,
Możliwa praca w pełni zdalna
Style:
art deco, boho, eklektyczny
( +7 stylów)
Małe pomieszczenia
Duże domy i mieszkania
Rodziny z dziećmi
Single
Osoby z niepełnosprawnością
Adres biura: Rawa Mazowiecka, łódzkie
Pracuję w:
Cała Polska,
Możliwa praca w pełni zdalna
Cena usług: od 179 zł/m2
Style:
boho, eklektyczny, glamour
( +8 stylów)
Dostępny od zaraz
Pracuję w:
Warszawa, Białystok, Gdańsk
(+11 miast),
Możliwa praca w pełni zdalna
Cena usług: od 150 zł/h
Style:
dopamine decor, eklektyczny, japandi
( +8 stylów)
Adres biura: Łódź, łódzkie
Pracuję w:
Częstochowa, Łódź, Płock,
Możliwa praca w pełni zdalna
Cena usług: od 300 zł/m2
Style:
boho, dopamine decor, eklektyczny
( +10 stylów)
Duże domy i mieszkania
Rodziny z dziećmi
Wynajem krótkoterminowy
Seniorzy
Wielbiciele roślin
Pracuję w:
Zielona Góra, Zabrze, Wrocław
(+40 miast),
Możliwa praca w pełni zdalna
Cena usług: od 100 zł/m2
Style:
art deco, boho, eklektyczny
( +12 stylów)
Pracuję w:
Możliwa praca w pełni zdalna
Style:
art deco, boho, dopamine decor
( +15 stylów)
Adres biura: Katowice, śląskie
Pracuję w:
Katowice, Bytom, Chorzów
(+8 miast),
Możliwa praca w pełni zdalna
Cena usług: od 100 zł/m2
Style:
boho, glamour, japandi
( +5 stylów)
Duże domy i mieszkania
Rodziny z dziećmi
Single
Budżetowe
Zwierzęta
Pracuję w:
Bielsko-Biała, Bydgoszcz, Bytom
(+40 miast),
Możliwa praca w pełni zdalna
Style:
boho, industrialny, japandi
( +9 stylów)